- Description
Description
The JDN Ultra Low Monorail Hoist provides the ideal solution when loads have to be lifted and transported in extremely reduced spaces. As an example; the model with a 6 tonne load capacity features a headroom of only 230mm. The carrying capacity of these models vary from 4 tonne up to 100 tonne, with an air pressure of 6 bar.
Features
- Manufactured in Germany, under strict quality control with demanding tolerances.
- All JDN models are manufactured to comply with AS1418.2.
- Ideal for applications in explosion risk areas.
- Insensitive to dust, humidity and temperatures ranging from -20 °C up to + 70 °C.
- Extremely low headroom.
- Low air consumption.
- Available with increased spark protection.
Specifications
*Capacities up to 100 tonne available on request
| MODEL | UH 4 | UH 6 | UH 8 | UH 12 | UH 16 |
|---|---|---|---|---|---|
| Air consumption at full load (m_/min) | 4 | 4 | 4 | 4 | 4 |
| Air Pressure (bar) | 6 | 6 | 6 | 6 | 6 |
| Chain Dimension (mm) | 13 x 36 | 13 x 36 | 13 x 36 | 13 x 36 | 13 x 36 |
| Length of control at standard load (m) | 2 | 2 | 2 | 2 | 2 |
| Lifting speed at full load (m/min) | 3 | 2 | 1.4 | 0.9 | 0.65 |
| Lowering speed at full load (m/min) | 7.5 | 5.2 | 3.6 | 2.5 | 1.5 |
| Motor Output (kW) | 2.5 | 2.5 | 2.5 | 2.5 | 2.5 |
| No. of chain strands | 2 | 2 | 4 | 4 | 4 |
| Noise level at full load lifting (dB (A)) | 78 | 78 | 78 | 78 | 78 |
| Noise level at full load lowering (dB (A)) | 80 | 80 | 80 | 80 | 80 |
| Rated Capacity (tonne) | 4 | 6 | 8 | 12 | 16 |
| Standard Lift (m) | 3 | 3 | 3 | 3 | 3 |
| Weight of 1m chain (kg) | 3.8 | 3.8 | 3.8 | 3.8 | 3.8 |
| Weight with standard lift and control length (kg) | 460 | 470 | 540 | 550 | 560 |
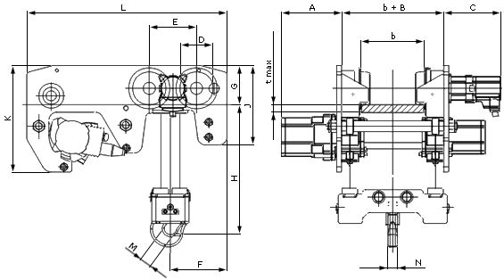
Dimensions (mm)

| MODEL | UH 4 | UH 6 | UH 8 | UH 12 | UH 16 |
|---|---|---|---|---|---|
| A | 195 | 305 | 195 | 305 | 305 |
| B | 200 | 200 | 200 | 200 | 200 |
| C | 284 | 284 | 284 | 284 | 284 |
| D | 165 | 165 | 165 | 165 | 165 |
| E | 236 | 236 | 236 | 236 | 236 |
| F | 330 | 330 | 283 | 283 | 283 |
| G | 197.5 | 197.5 | 197.5 | 197.5 | 197.5 |
| H min. 150<=b<=310 | 230 | 230 | - | - | - |
| H min. 150<=b<=230 | - | - | 295 | 295 | 334 |
| H min. 230<=b<=310 | - | - | 276 | 276 | 315 |
| J | 400 | 400 | 400 | 400 | 400 |
| K | 535 | 535 | 535 | 535 | 535 |
| L | 1000 | 1000 | 1000 | 1000 | 1000 |
| M | 40 | 40 | 44 | 44 | 53 |
| N | 51 | 51 | 66 | 66 | 82 |















